DZP2024 Anerkennung Krematorium München Beer Bembe Dellinger
© Stefan Müller-Naumann

Anerkennung 2024 Mehrschalig

KREMATORIUM AM OSTFRIEDHOF

BEER BEMBÉ DELLINGER, MÜNCHEN

Ort

München

Fertigstellung

07/2022

Bauherr

LH München, Kommunalreferat, Gesundheitsreferat (SFM), Projektleitung Baureferat Hochbau

Architekt

Beer Bembé Dellinger Architekten und Stadtplaner, München

Tragwerksplanung

Bauer + Partner Ingenieurbüro für das Bauwesen

Ausführung Mauerwerk

Klinker Kuntz GmbH

Konstruktion

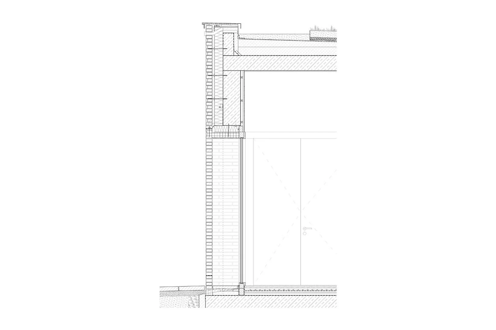
Stahlbeton und Klinker

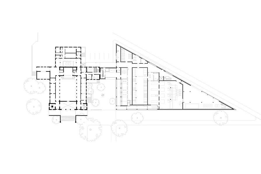
Krematorium am Ostfriedhof der LH München


Das neue Krematorium am Ostfriedhof wird als Ersatzneubau für das Krematorium der 1970ger Jahre errichtet, das technisch ersetzt werden muss. Gleichermaßen ist das Gebäude aufgrund betrieblicher Verknüpfungen als Erweiterungsbau direkt an die historische und denkmalgeschützte Trauerhalle der 1920ger Jahre von Hans Grässel angeschlossen. Die neue Baumassenstruktur wird in das Baufeld als dreieckiger Baukörper mit Gelenkanschluss zum Altbau nahezu vollflächig eingeschrieben. Der Umriss der Anlage folgt der Klarheit des Grässel’schen Erschließungssystems von öffentlicher Adresse zur parkähnlichen Friedhofsanlage im Westen und betrieblicher Andienung entlang des Bahndamms im Osten, das der städtebaulichen Setzung der historischen Anlage zugrunde liegt. Durch die Auswahl zurückhaltender, authentischer Materialien wie Ziegel, Naturstein, Terrazzo und Eichenholz, entsteht in den öffentlichen Bereichen eine ruhige Material- und Raumatmosphäre. Der texturierte und hell geschlämmte Ziegel im Langformat ist in Abstimmung mit der Materialität des Baudenkmals über einen ausführlichen Bemusterungsprozess definiert worden. Die durch das Filtermauerwerk gedämpfte Belichtung schützt die Trauernden und ermöglicht zugleich Sichtbezüge in die parkähnliche Friedhofsanlage. 

PLÄNE